Default sidemenu image
Search

Leave a Message

Thank you for your message. We will be in touch with you shortly.

Explore Our Properties

Property Description

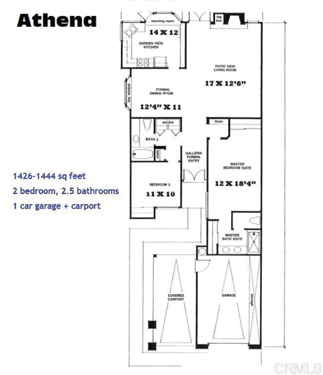
Welcome to the beautiful 55+ community of Ocean Hills Country Club! Nestled in the southwest hills of Oceanside, where you will enjoy cool ocean breezes and sunshine without the coastal marine layer. This Athena model is attached on one side but has the privacy of a single-family home. One car attached garage and one car/golf cart covered carport plus a full driveway offer many parking options. The primary bedroom features a walk-in closet and attached dual vanity bathroom with walk-in shower. The split floorplan provides privacy for the secondary bedroom/office and bathroom for guests. The large living and dining rooms are open and inviting for entertaining and are adjacent to the eat-in kitchen. The home has been meticulously kept and features beautiful wood-laminate flooring throughout. The attractively landscaped property is gated and features a front patio that wraps around to the backyard which backs up to a green belt. OHCC is the ultimate lifestyle for active living. This gated community is centered around an 18-hole executive golf course and if golf isn't your thing, there are over 30 social clubs and activities such as swimming in the Jr. Olympic pool, tennis, pickle ball, paddle tennis, bocce ball, shuffle board and even a wood working shop. The 27,000 square foot club house features two gyms, various fitness classes, locker room, performance hall, technology room, library, billiards room, media room, sewing room, crafts room, and several other individual meeting and club rooms. For residents with pets, there is an off-leash dog park and walking trails throughout the community. Residents with RV's can utilize a secure, gated, free RV lot. Come explore Ocean Hills Country Club and discover all the amenities designed for your retirement years.

Overview

Property Status
Sold
MLS ID
NDP2408235
Property Type
Townhouse
Year Built
1988

Features & Amenities

Neighborhood
San Diego County
Architecture Styles
Mediterranean, Patio Home
View Description
Park/Greenbelt, Neighborhood
Stories
1
Garage Spaces
1.0
Utilites
Cable Available, Electricity Connected
Pool
Community, Heated, In Ground, Lap, Association
Roof
Clay
Lot Features
Front Yard, Greenbelt, Landscaped, Yard
Parking
Attached Carport, Door-Single, Garage
Heat Type
Central
Air Conditioning
Central Air
Laundry Room
Laundry Closet
Fireplace
Primary Bedroom, None
Appliances
Dishwasher, Gas Cooking, Disposal, Gas Range, Gas Water Heater, Microwave, Refrigerator
Other Interior Features
Beamed Ceilings, Breakfast Area, Separate/Formal Dining Room, Granite Counters, Pantry, Unfurnished, All Bedrooms Down, Bedroom on Main Level, Main Level Primary, Primary Suite
Sewer
Public Sewer
Substructure
Concrete Perimeter
Disability Features
Safe Emergency Egress from Home, Grab Bars, No Stairs, Parking, Accessible Doors
HOA Amenities
Bocce Court, Billiard Room, Clubhouse, Controlled Access, Sport Court, Fitness Center, Golf Course, Game Room, Meeting Room, Meeting/Banquet/Party Room, Other Courts, Barbecue, Paddle Tennis, Pickleball, Pool, Pet Restrictions, Pets Allowed, Recreation Room, RV Parking, Guard, Spa/Hot Tub
Security Features
Carbon Monoxide Detector(s), Gated with Guard, Gated Community, 24 Hour Security, Smoke Detector(s), Security Guard
School District
Oceanside Unified
Sales Price
$845,000
HOA
$671/mo
Zoning
R1

Downloads

5032 Santorini Way

Schedule a Tour

I would love to help you see this beautiful home! As a full-service brokerage, we can help you tour. Please submit an offer, and answer questions about the buying process.

Enter a valid email

Thank you

for your interest in 5032 Santorini Way, Oceanside, CA 92056

back to page
5032 Santorini Way
Navigate

5032 Santorini Way
explore in 3d

I'm Interested In

5032 Santorini Way

or Contact

Follow Us On Instagram